地 址: 河南省巩义市西村工业区
联系人: 庞经理
手 机: 15617617287
15038001853
E_mail: gyltgd@126.com
网 址: /
https://www.ddboys.com/

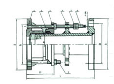
双法兰限位伸缩接头型号VSSJA-2或B2F型,管道两边法兰的连接方式,安装在管道上可以和阀门连接,既补偿了管道的伸缩量又对阀门的维修提供了方便。 VSSJA-2型双法兰限位伸缩接头是由松套伸缩接头和一个法兰限位短管组合而成。双法兰限位伸缩接头能防止管道因超量位移导致补偿接头的泄漏和损坏,主要用于在允许位移范围内吸收轴向位移和承受轴向压力推力的管道松套连接。
双法兰限位伸缩接头应用范围
VSSJA-2型双法兰限位伸缩接头适用于输送海水、淡水、冷热水、饮用水、生活污水、原油、燃油、润滑油、成品油、空气、煤气、温度不高于250度的蒸汽和颗粒粉状等介质。
双法兰限位伸缩接头功能介绍
双法兰限位伸缩接头型号VSSJA-2或B2F型,管道两边法兰的连接方式,安装在管道上可以和阀门连接,既补偿了管道的伸缩量又对阀门的维修提供了方便。 VSSJA-2型双法兰限位伸缩接头是由松套伸缩接头和一个法兰限位短管组合而成。双法兰限位伸缩接头能防止管道因超量位移导致补偿接头的泄漏和损坏,主要用于在允许位移范围内吸收轴向位移和承受轴向压力推力的管道松套连接。